Rabu, 06 Juli 2011

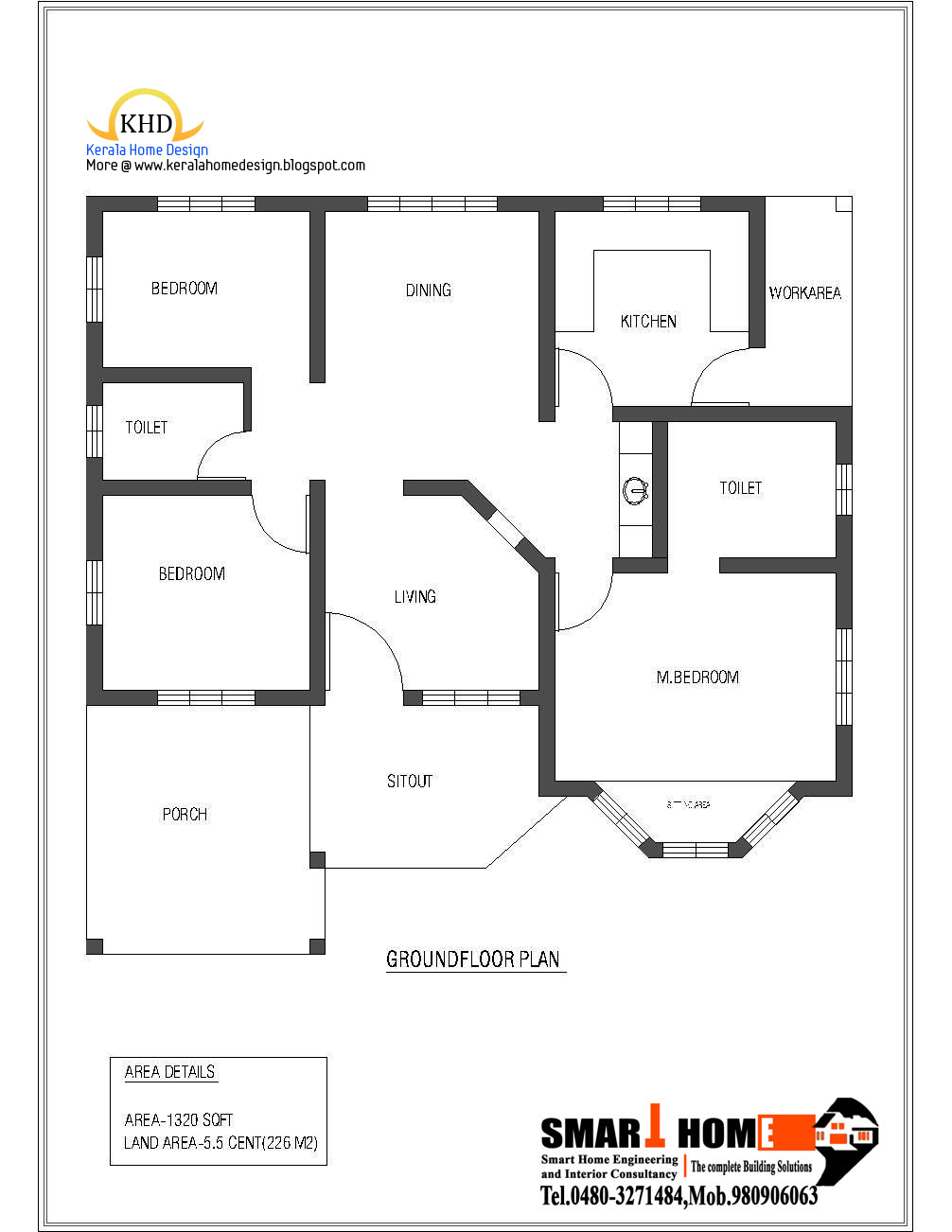
Single Floor House Plan and Elevation - 1320 Sq. Ft.

Ground Floor – 1320 Sq.Ft.
Total Built up Area – 1320 Sq.Ft.
Land Area 5.5 cent(226 M2)
Single Floor House Plan

Single Floor House Plan

Designer: Smarthome
Engineering and interior Consultancy
Mala-Thrissur
Ph.04803271484, 9809060630
Help line no.9809203630
Email: smarthomemala@gmail.com

Tidak ada komentar:

Posting Komentar